- Forside
- |
- Ledige lokaler
- |
- Lars Hilles gate 14
Store og fleksible lokaler i spennende bygg midt i sentrumskjernen. Umiddelbar nærhet til kollektivtransport.
Lars Hilles gate 14, 5008 Bergen
Nøkkelinfo
Type lokale:
Kontor, Undervisning/Arrangement
Område:
Bergen Sentrum
Areal:
500 - 6499 m²
Etasje:
-
Overtakelse:
01.01.2026
Video
Meglere
Fredrik Stenevik
Leder utleie
Telefon: +47 92 29 05 75
E-post: utleie@wps.no
Karina Raatræ
Rådgiver
Telefon: +47 99 60 34 46
E-post: utleie@wps.no
Fasiliteter
Bredbåndstilknytning, Heis
Beskrivelse
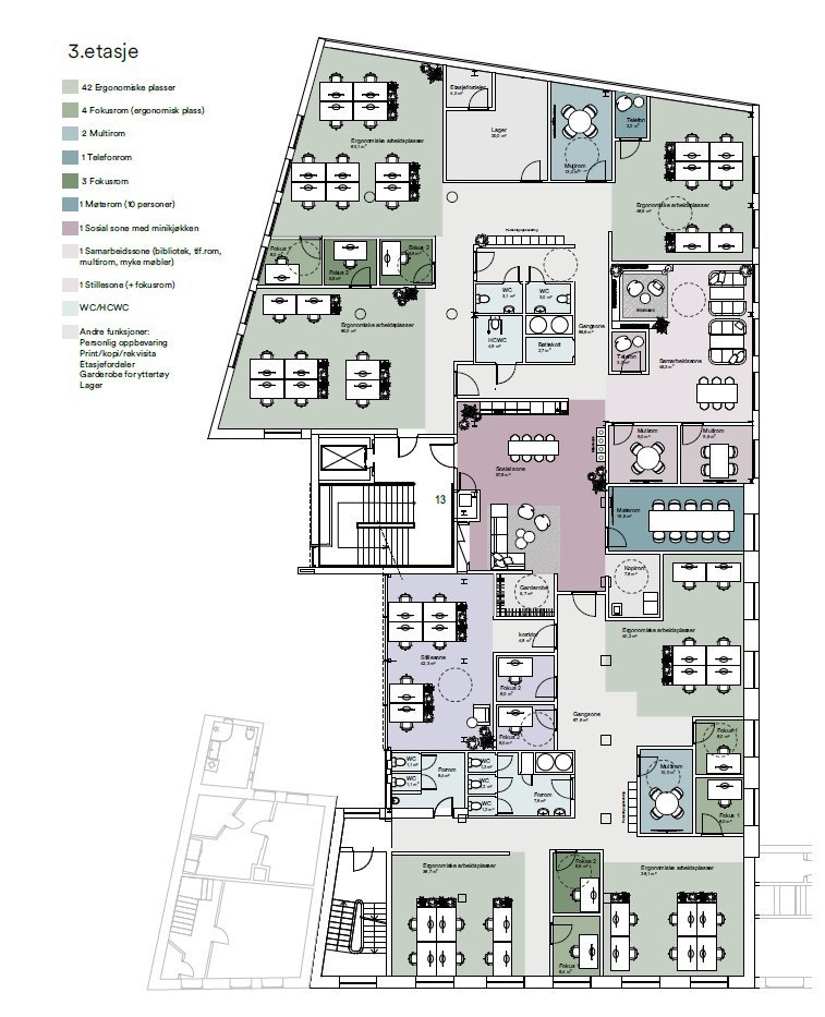
Lars Hilles gate 14-16 tilbyr store lokaler på en av Bergens absolutt mest attraktive lokasjoner. Bygget har et industrielt preg med store mursteinsfasade, store vinduer og god takhøyde. Dette er ett av få bygg i sentrum hvor en kan få store arealer på samme flate, hele 1500 kvm BTA. Dette gjør at de fleksible arealene er godt egnet for både kontor, undervisning og kreative miljøer.
Lokalene har i dag gjennomgående ok standard, og huseier er åpen for å tilrettelegge for leietakers ønsker og behov, ref illustrasjonsbilder i annonsen. Huseier vurderer også etablering av husrestaurant og møteromssenter, alt avhengig av hvilke leietakere som flytter inn samt deres behov.
Beliggenhet
Eiendommen har meget attraktiv og sentral beliggenhet i Bergen sentrum. Det er kort gangavstand til Bergen busstasjon, bybanestopp, Bygarasjen, jernbanestasjonen, Media City, Lille Lungegårdsvann og Byparken. Det er en strategisk god beliggenhet ifh. til hovedveinett og enkel adkomst til byens omkringliggende bydeler. Det tilhører også egen parkeringsplass på eiendommen.
Innhold
Det er mulig å leie deler, eller hele eiendommen hvor følgende arealer fristilles 01.04.2024:
Plan 1 BTA 774 kvm.
Plan 2 BTA 1578 kvm.
Plan 3 BTA 1512 kvm.
Plan 4 BTA 1531 kvm.
Plan 5 BTA 1104 kvm.
Sum BTA 6499 kvm.
Tilstand
Lokalene holder i dag normalt god teknisk standard, og vil bli tilpasset iht. til leietakers behov. Det er store vinduer, god takhøyde, stor heis, og balansert ventilasjon. Utleier har løpende vedlikehold på eiendommen med egen driftsansvarlig, samt er positiv til nye oppgraderinger på bygget.
Matrikkelinformasjon
Kommunenr: 4601
Gårdsnr: 934
Bruksnr: 164
Få tilsendt prospekt på dette lokalet
Legg igjen epost adressen din, så sender vi deg prospektet.
Bilder av eiendommen
Registrer ditt leiebehov
Vi bistår deg gjerne med å finne passende lokaler for din bedrift.
Ring oss eller registrer ditt leiebehov her, og vi kontakter deg.