Nøkkelinfo

Ikon for type lokale

Type lokale:

Kontor

Ikon for område

Område:

Bergen Sentrum

Ikon for område

Areal:

250 m²

Ikon for område

Etasje:

3

Ikon for område

Overtakelse:

Etter avtale

Meglere

Bilde av Karina Raatræ

Karina Raatræ

Rådgiver

Telefon: +47 99 60 34 46

E-post: utleie@wps.no

Bilde av Fredrik Stenevik

Fredrik Stenevik

Leder utleie

Telefon: +47 92 29 05 75

E-post: utleie@wps.no

Fasiliteter

Aircondition, Bredbåndstilknytning, Heis, Kantine

Beskrivelse

Det blir nå ledig topp moderne kontorlokaler i fullservicebygg midt i Bergen sentrum med gangavstand til alle fasiliteter. Bygget tilbyr stor kantine, felles garderober, sykkelparkering, og heis opp til kontorlokalene. Eiendommen har en flott teglsteinsfasade med store vinduer og god takhøyde i hver etasje.
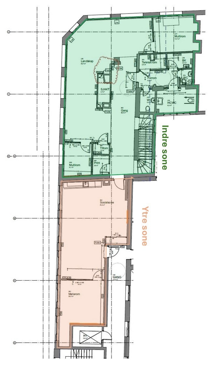
Lokalet gjennomgikk en totalrenovering for ca 5 år siden. Her er det gjennomgående høy standard på overflater og utstyr. Se vedlagt plantegning for informasjon om rominndelingen.
Lokalet passer for bedrifter med mellom 5-15 ansatte, avhengig av hvordan en ønsker fordelingen av kontorplasser. Her er sosial sone, to møterom og stort kontorlandskap i dag, men huseier kan også gjøre enkelte endringer, dersom det er ønskelig.
Bygget har sto og flott kantine som er driftet av Søtt & Salt.

Ta gjerne kontakt dersom det er ønskelig med ytterligere informasjon eller visning.

Beliggenhet

Eiendommen har en sentral beliggenhet, midt i sentrum, med kort vei til alle byens fasiliteter. Det er kort gangavstand til bybane, buss, og ulike parkeringshus.

Matrikkelinformasjon

Kommunenr: 4601
Gårdsnr: 1582
Bruksnr: 167

Få tilsendt prospekt på dette lokalet

Legg igjen epost adressen din, så sender vi deg prospektet.

Bilder av eiendommen

Registrer ditt leiebehov

Vi bistår deg gjerne med å finne passende lokaler for din bedrift.
Ring oss eller registrer ditt leiebehov her, og vi kontakter deg.